Skip To Content

609 Richard Road

Lexington, NC 27292
  • $199,994
  • STATUS: Active
  • ON SITE: 69 Days
  • ID#: 4306730
Price Reduced
UPDATED: 39 min ago
$199,994
  • 3
    BEDS
  • 0.03
    ACRES
  • 2
    BATHS
  • 1
    1/2 BATHS
  • 1,648
    SQFT
  • $121
    $/SQFT
Neighborhood:
Type:
Townhouse
Built:
2025
County:
Area:

School Information

Elementary School:
Middle School:
High School:
Canopy MLS logo Offered by WJHBNCLLC: 704-494-0995. Copyright 2025 Canopy MLS. All rights reserved.

Description

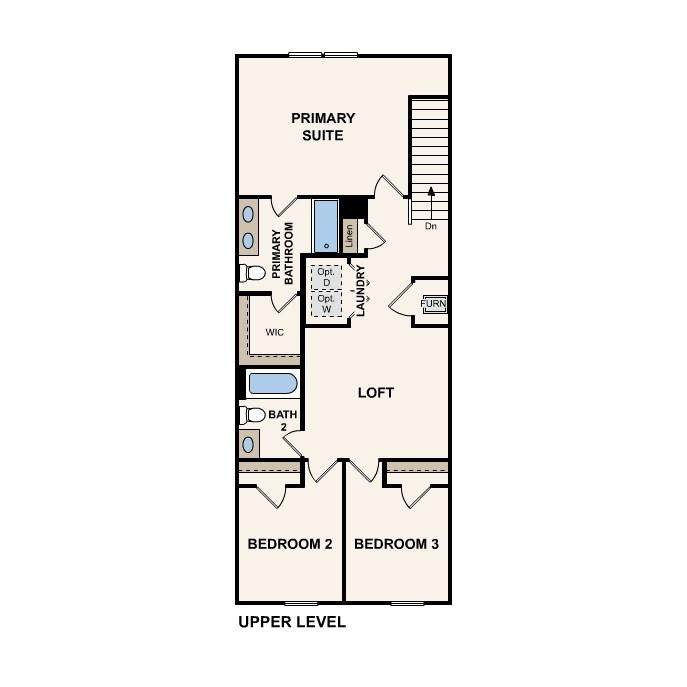
"Be charmed by this new construction home in the vibrant The Towns at Green Needles! The Holly Springs Plan is a stunning new 2 story Townhome that combines modern elegance with practicality, featuring an open-concept design that flows seamlessly from the expansive great room to the home's central hub. The contemporary kitchen dazzles with stylish cabinetry, sleek granite countertops, and stainless steel appliances, including a smooth-top range, overhead microwave, and dishwasher, ideal for any culinary endeavor. Upstairs, discover all bedrooms, a dedicated laundry room, and a versatile loft space perfect for an office, play area, or cozy reading nook. The generous primary suite offers a private bath with dual vanity sinks and a spacious walk-in closet. A 1-car garage and energy-efficient Low E insulated dual-pane vinyl windows add to the appeal, complemented by a 1-year limited home warranty for added peace of mind. Embrace a vibrant lifestyle in Holly Springs Plan. "

Monthly Payment Calculator



MLS Grid logo Based on information submitted to the MLS GRID as of 2025-12-04T18:33:43.997 UTC. All data is obtained from various sources and may not have been verified by broker or MLS GRID. Supplied Open House Information is subject to change without notice. All information should be independently reviewed and verified for accuracy. Properties may or may not be listed by the office/agent presenting the information.The data relating to real estate on this Web site derive in part from the Canopy MLS IDX program. Brokers make an effort to deliver accurate information, but buyers should independently verify any information on which they will rely in a transaction. All properties are subject to prior sale, change or withdrawal. Neither MartinGroup Properties nor any listing broker shall be responsible for any typographical errors, misinformation, or misprints, and they shall be held totally harmless from any damages arising from reliance upon this data. This data is provided exclusively for consumers' personal, non-commercial use and may not be used for any purpose other than to identify prospective properties they may be interested in purchasing. © 2025 Canopy MLS.

“Listings courtesy of Canopy MLS as distributed by MLS GRID

Some IDX listings have been excluded from this website.

Digital Millennium Copyright Act
www.homesearchcharlottenc.com/homes/168271151
Print Image

609 Richard Road Lexington, NC 27292

  • Price: $199,994
  • Status: Active
  • On Site: 69 Days
  • Updated: 39 min ago
  • ID#: 4306730
3
Beds
2
Baths
1
½ Baths
0.03
Acres
1,648
SQFT
$121
$/SQFT
2025
Built
Neighborhood:
Green Needles
County:
Davidson
Area:
Lexington
Elementary School:
Southwood
Middle School:
Central Davidson
High School:
Central Davidson
Property Description
"Be charmed by this new construction home in the vibrant The Towns at Green Needles! The Holly Springs Plan is a stunning new 2 story Townhome that combines modern elegance with practicality, featuring an open-concept design that flows seamlessly from the expansive great room to the home's central hub. The contemporary kitchen dazzles with stylish cabinetry, sleek granite countertops, and stainless steel appliances, including a smooth-top range, overhead microwave, and dishwasher, ideal for any culinary endeavor. Upstairs, discover all bedrooms, a dedicated laundry room, and a versatile loft space perfect for an office, play area, or cozy reading nook. The generous primary suite offers a private bath with dual vanity sinks and a spacious walk-in closet. A 1-car garage and energy-efficient Low E insulated dual-pane vinyl windows add to the appeal, complemented by a 1-year limited home warranty for added peace of mind. Embrace a vibrant lifestyle in Holly Springs Plan. "
Exterior Features

Carport YN No Construction Materials Vinyl Construction Type Site Built Entry Level 1 Foundation Details Slab Garage YN Yes Levels Two Main Level Garage YN Yes Parking Features DrivewayAttached Garage Road Responsibility Publicly Maintained Road Road Surface Type ConcretePaved

Interior Features

Above Grade Finished Area 1648 Appliances DishwasherElectric OvenElectric RangeMicrowave Basement YN No Below Grade Finished Area 0 Cooling Central Air Fireplace YN No Garage Spaces 1 Heating CentralElectric Laundry Features Electric Dryer HookupLaundry ClosetUpper LevelWasher Hookup Lower Square Feet 0 Main Square Feet 705 Rooms Main (Kitchen) Main (Dining Area) Main (Great Room) Upper (Primary Bedroom) Upper (Bedroom(s)) Upper (Bedroom(s)) Upper (Loft) Sq Ft Unheated Total 0 Sq Ft Upper 943 Third Square Feet 0

Property Features

Additional Parcels YN False Association YN Yes Assumable YN No Auction YN No CCRSubject To Yes City Taxes Paid To Lexington Construction Status Under Construction Hoa Subject To Required Land Included YN Yes Listing Terms CashConventionalFHAVA Loan New Construction YN Yes Property Sub Type Townhouse Proposed Completion Date 2025-11-25 Senior Community YN No Sewer Public Sewer Special Listing Conditions None Water Source Public



MLS Grid logo Based on information submitted to the MLS GRID as of 2025-12-04T18:33:43.997 UTC. All data is obtained from various sources and may not have been verified by broker or MLS GRID. Supplied Open House Information is subject to change without notice. All information should be independently reviewed and verified for accuracy. Properties may or may not be listed by the office/agent presenting the information.The data relating to real estate on this Web site derive in part from the Canopy MLS IDX program. Brokers make an effort to deliver accurate information, but buyers should independently verify any information on which they will rely in a transaction. All properties are subject to prior sale, change or withdrawal. Neither MartinGroup Properties nor any listing broker shall be responsible for any typographical errors, misinformation, or misprints, and they shall be held totally harmless from any damages arising from reliance upon this data. This data is provided exclusively for consumers' personal, non-commercial use and may not be used for any purpose other than to identify prospective properties they may be interested in purchasing. © 2025 Canopy MLS.

“Listings courtesy of Canopy MLS as distributed by MLS GRID

Some IDX listings have been excluded from this website.

Digital Millennium Copyright Act
 
https://bt-photos.global.ssl.fastly.net/cmls/orig_boomver_1_4306730-1.jpg https://bt-photos.global.ssl.fastly.net/cmls/orig_boomver_1_4306730-1.jpg
Logo
MartinGroup Properties
1323 Lafayette Avenue
Charlotte NC, 28203
Canopy MLS logo Offered by WJHBNCLLC: 704-494-0995. Copyright 2025 Canopy MLS. All rights reserved.